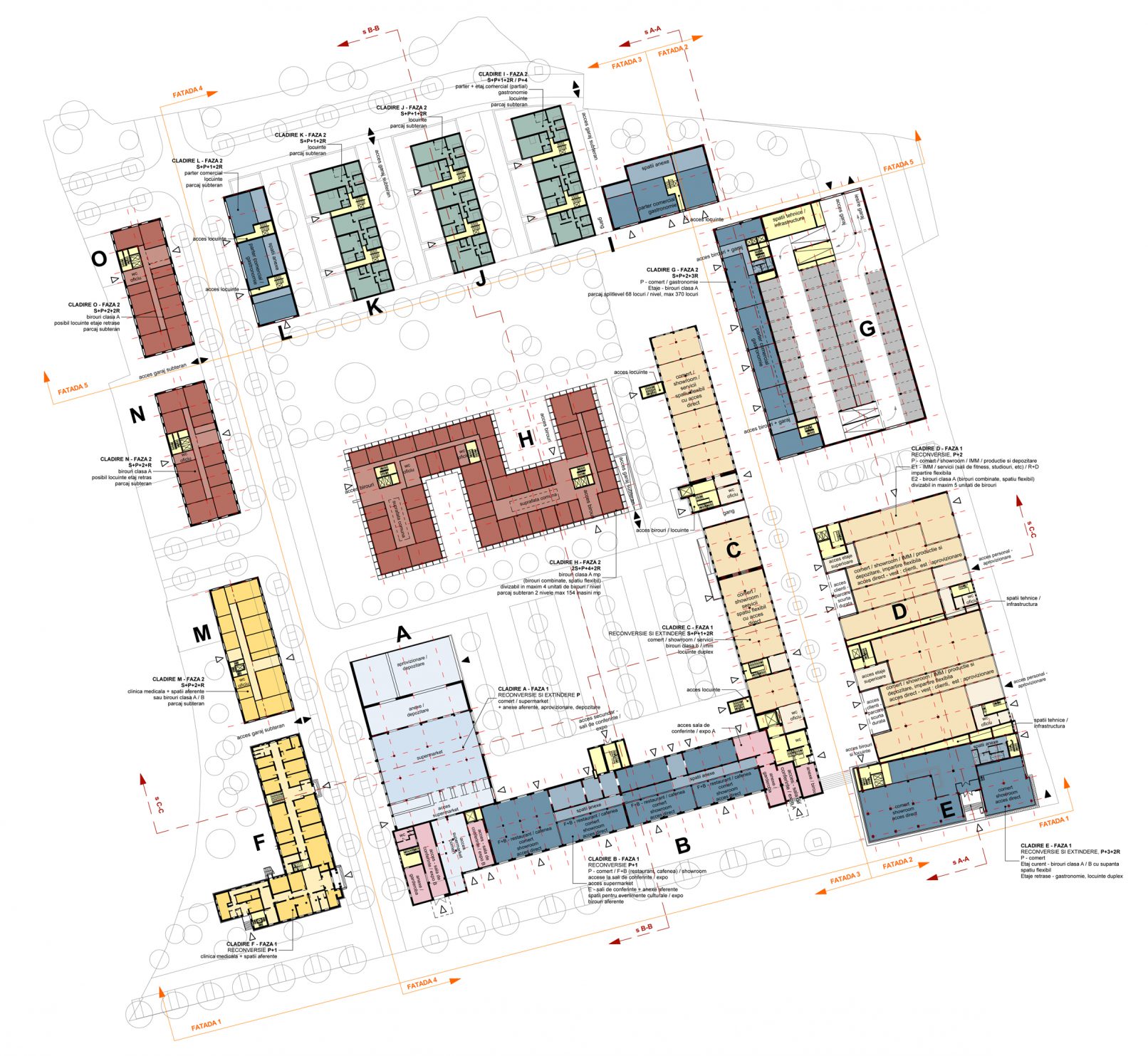
LIBERTY CENTER
Cluj. 2012
Invited competition entry
Client and organizer: Fribourg Development
External team: Dico şi Ţigănaş, BAU, Valentin Meteş
Area / GFA: 4,5ha / 71.000 sqm
Designed: 2012
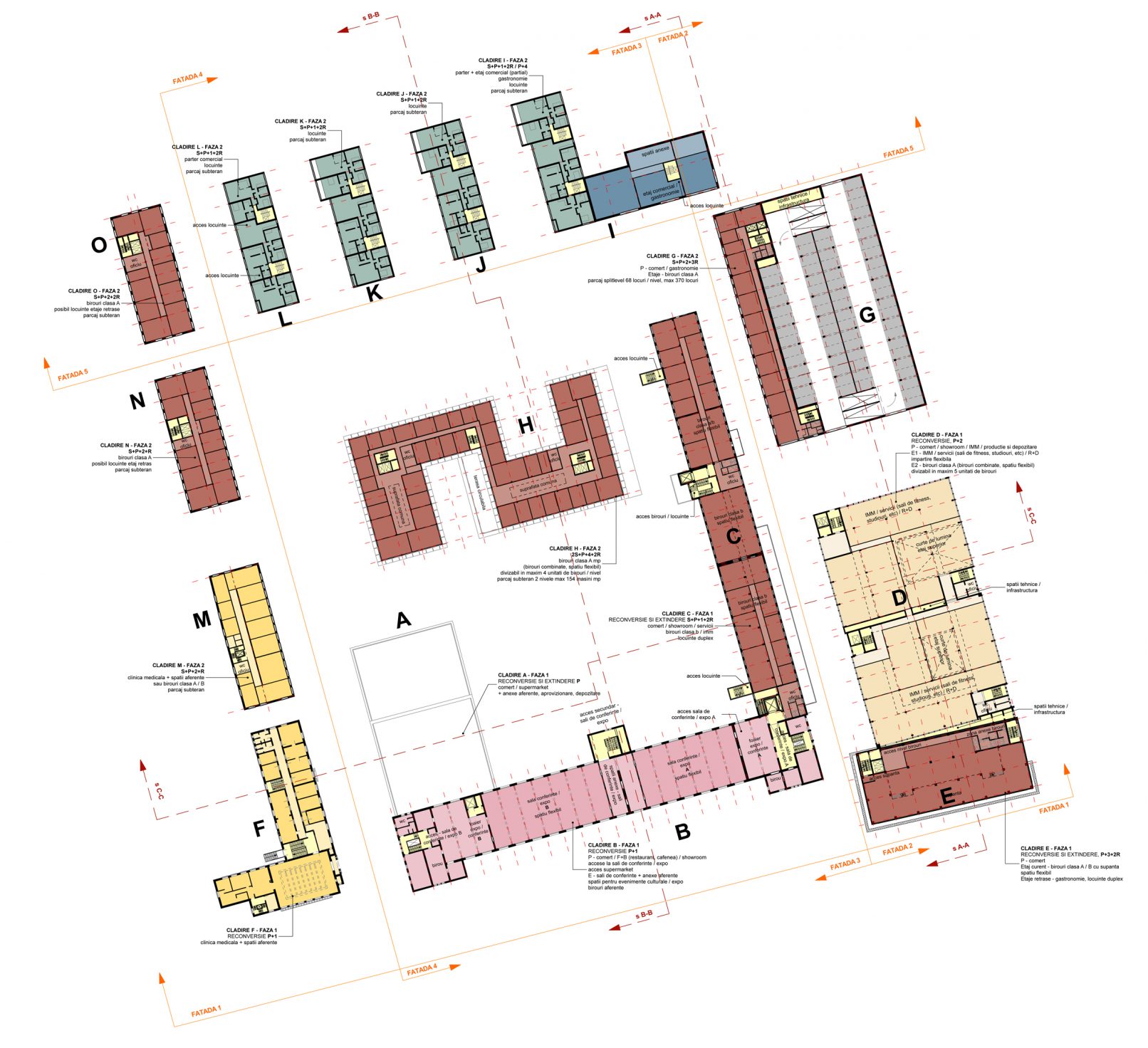
Cluj. 2012
Invited competition entry
Client and organizer: Fribourg Development
External team: Dico şi Ţigănaş, BAU, Valentin Meteş
Area / GFA: 4,5ha / 71.000 sqm
Designed: 2012