MEDIATHEK
Dej. 2009
Auftraggeber: Stadt Dej
Projektart: Realisierungswettbewerb 1. Preis 2008, Teilprojekt
Zusammenarbeit: Progir, NV Construct, Energobit, Proverex, Aqua Design, Triskele
BGF: 1.600m²
Planung: 2009
Leistungsspektrum: Generalplaner, alle Planungsphasen
Machbarkeitsstudie für EU-Förderantrag
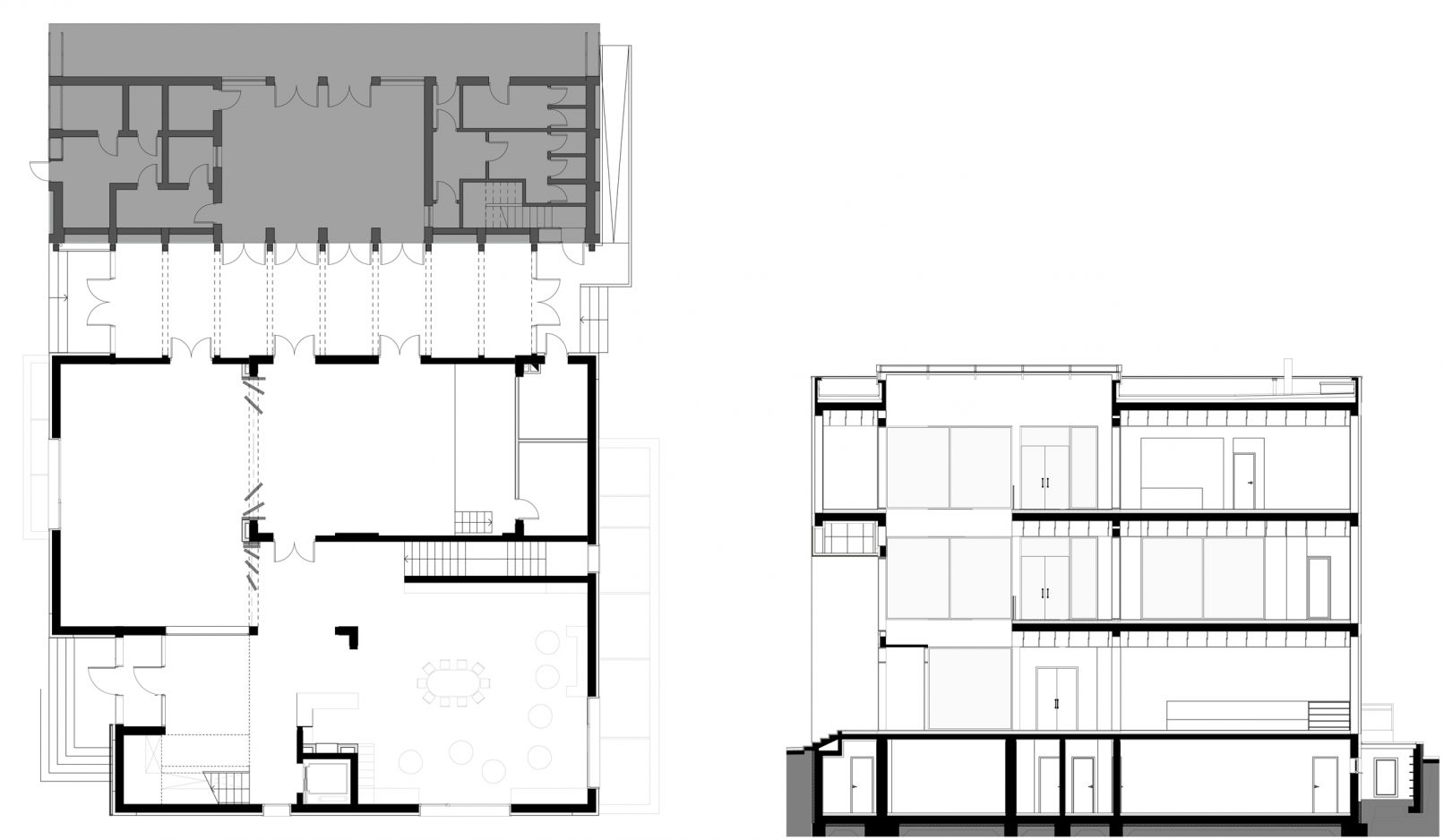
Infolge baulicher Eingriffe in den Stadtkörper im Staatssozialismus weisst der zentrale Stadtraum durch überdimensionierte Verkehrsflächen und fehlende Raumfassung starke strukturelle, funktionale und soziale Schwächen auf. Im Rahmen des Stadtumbauprojektes Dej wird der Verkehr neu organisiert und zukünftig um das historische Zentrum geführt. Dadurch wird die Setzung des Neubaus der Mediathek als vorgelagerter Anbau an ein bestehndes Kino möglich. Es entstehen maßstabsgerechte Raumbeziehungen und klare Raumkanten. Der ehemals zerfliessende Raum wird in zwei neue Plätze mit städtischer Aufenthaltsqualität und Erholungsangeboten gliedert. Der Baukörper der Mediathek ist um zwei vertikale Innenräume organisiert: Das über alle Geschosse aufstrebende Atrium in Verbindung mit der Haupttreppe und der zweigeschossige Mehrzwecksaal. Die Funktionsanordnung in offen gestalteten Räumen ermöglicht vielfältige Blickbeziehungen zwischen den drei Etagen und gibt dem Haus einen offenen, bürgerfreundlichen Charakter. Ein gemeinsames Foyer verbindet Die Veranstaltungsräume der Mediathek im Erdgeschoss mit dem Kino zur wechselseitigen Nutzung. Das kraftvolle, kubische Volumen stellt mit großformatigen Fassadenöffnungen eine Verbindung zum öffentlichen Raum her.



