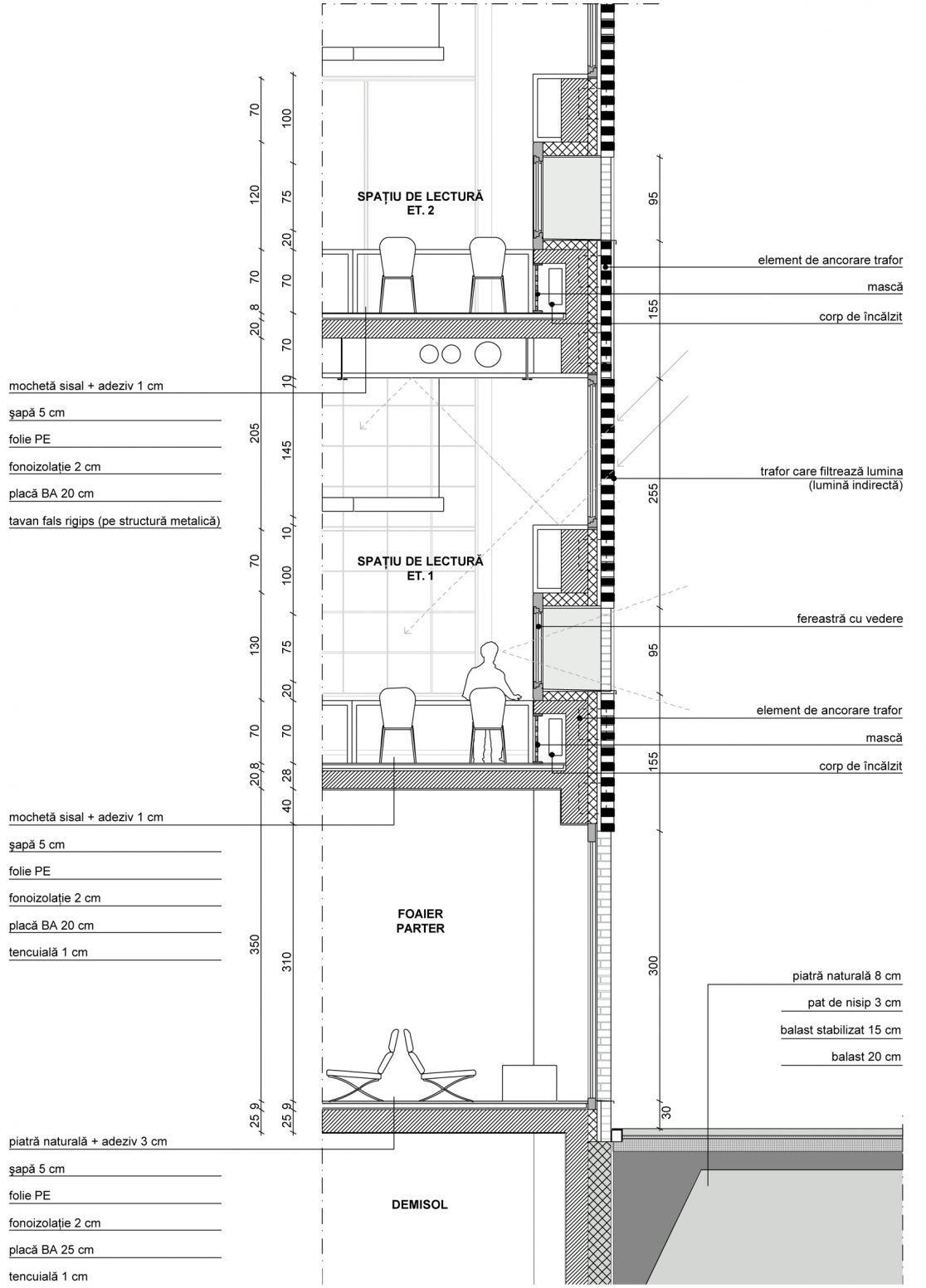
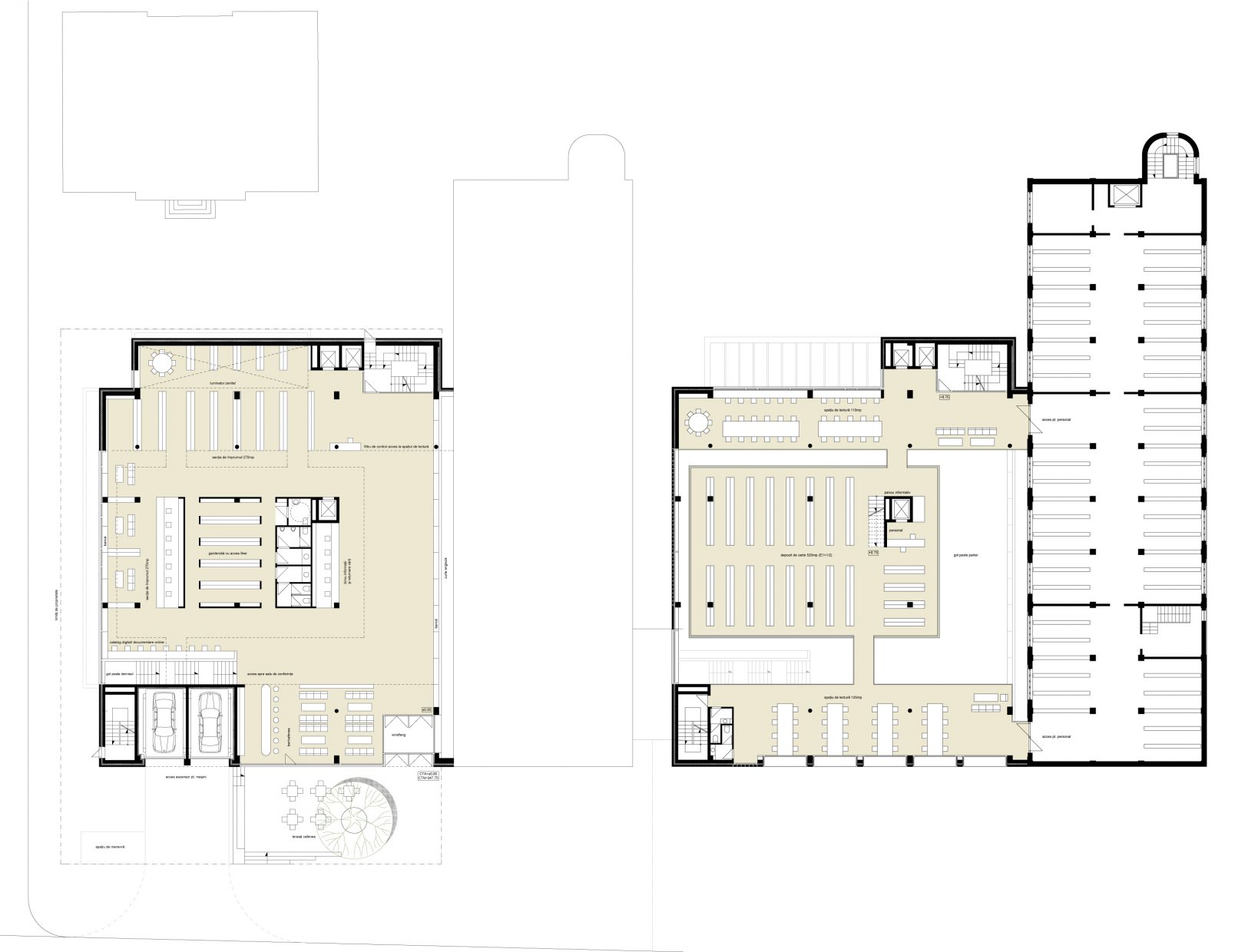
ERWEITERUNG DER UNIVERSITÄTSBIBLIOTHEK

Cluj. 2010

Projektart: Realisierungswettbewerb

Auslober: Universitätsbibliothek Cluj

Zusammenarbeit: a-viz, Ana Botezatu

Größe: 4.500 qm

Bearbeitung: 2010