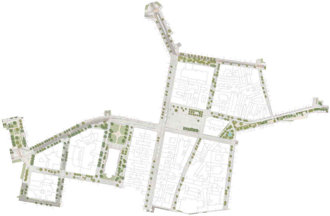
PIAȚA TRAIAN
Timișoara. 2022
Beneficiar: Primăria Municipiului Timișoara
Suprafaţă: 56.000 mp
Elaborare: 2022
Colaboratori: Cristina Moldovan, Beatrice-Ana Jijian, Ágnes Borbély, Prodeco Arhitectură și Inginerie, Bogdan Chiorean, Vexillum srl, sAH studio de peisaj Ana Horhat
Tipul lucrării: concept, DALI, DTAC, PT
































