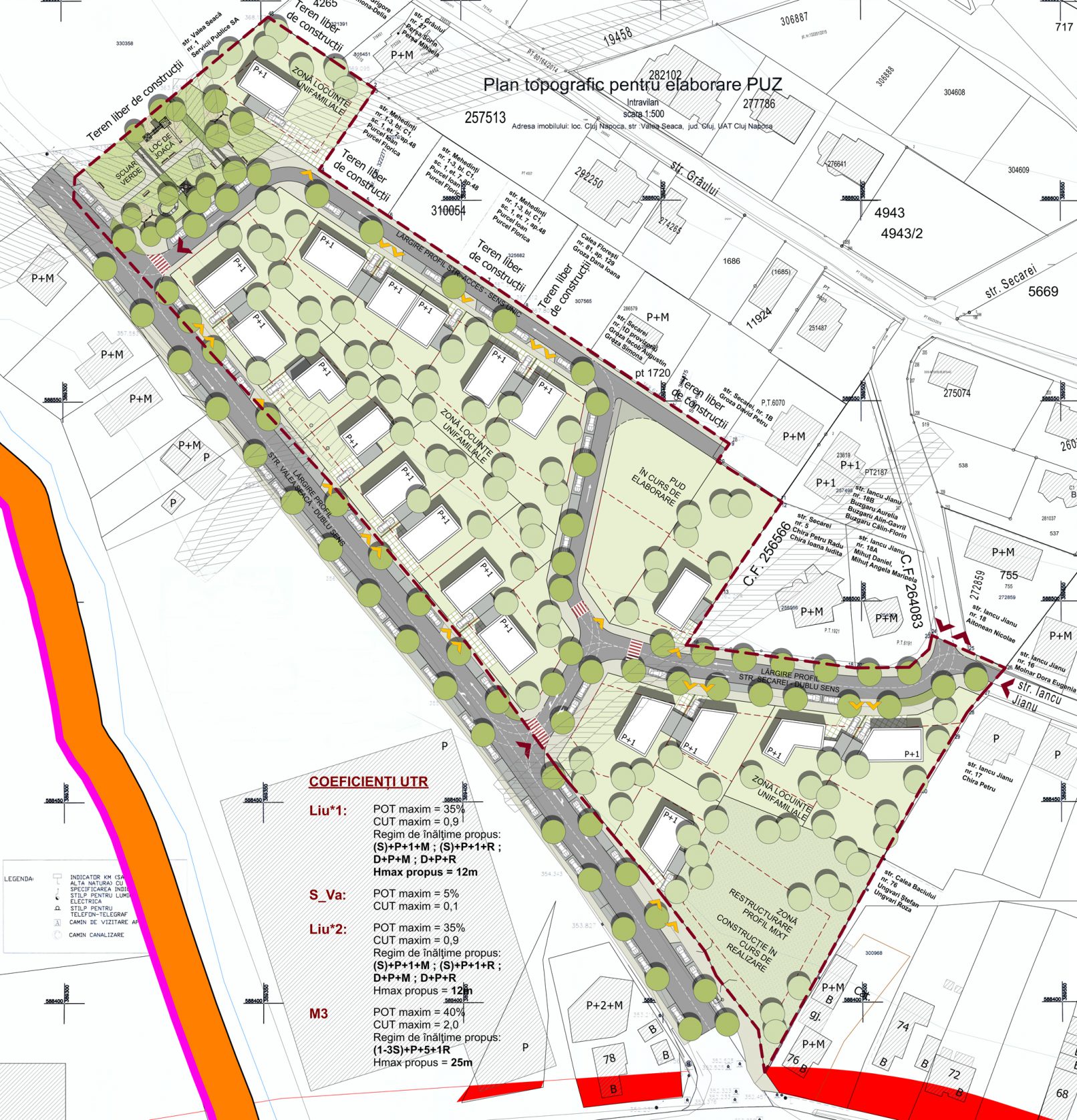
BEBAUUNGSPLAN VALEA SEACĂ

Cluj. 2020

Auftraggeber: privat
Projektart: Direktbeauftragung
BGF: 18.000 m² Zusammenarbeit: Aqua Prociv Proiect, Electro Dalex, Vexillum
Planung: 2016-2020
Leistungsspektrum: Masterplan, Bebauungsplan