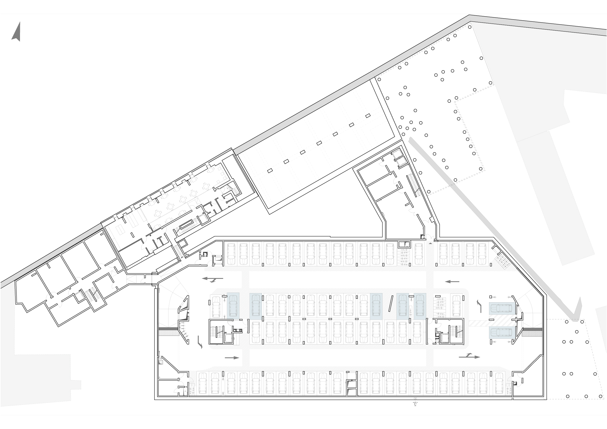
RESTRUCTURARE ROVEX

Oradea. 2025

Beneficiar: Sapient Premium, Scala Șase
Colaboratori: GP Proiect, CSP Proiect
Suprafața/AD: 5.858 mp / 25.700 mp
Faze: Masterplan, PUD, DTAC, PT, DE, AT
Planificare, proiectare, execuție: 2019 – 2025