PLAIURI SUD
Cluj. 2017
Beneficiar: Citadinia Real Estate
Colaboratori: GP Proiect, Barabas Denes, Sandra Lucaci, Verona Musteață, Ștefan Nechimiș, Claudia Popa
Suprafaţă desfăşurată: 16.700 mp suprateran
Proiectare şi execuţie 2015-2017
Faze: DTAC, PT, DE
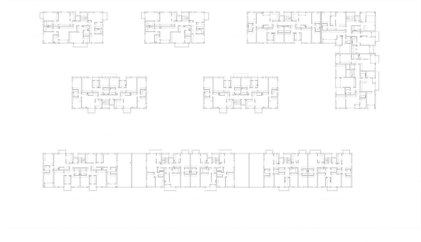
Ansamblul ocupă un teren pe versantul Feleacului, într-o zonă eterogenă din punct de vedere tipologic, dar predominat rezidențială. Principalul avantaj al amplasamentului – perspectivele largi spre oraș – este speculat prin configurarea și orientarea camerelor și a curților.
Prin dispunerea subterană a parcajelor, o parte semnificativă a suprafețelor exterioare este dedicată pietonilor, sub forma curților înverzite, a grădinilor aferente apartamentelor și a zonelor verzi.
224 apartamente de diferituri tipuri și dimensiuni sînt organizate în 6 corpuri de clădire, aliniate la rîndul lor în lungul străzii de acces și a unei curți pietonale. Două mici spații comerciale la colțurile străzilor oferă servicii de cartier într-o zonă în mare măsură monofuncțională.













