IMOBIL MIXT
Cluj. 2011
Autori: BAU şi Planwerk
Beneficiar: BAU şi Planwerk
Suprafaţă: 970 m²
Proiectare şi realizare: 2007 – 2011
Documentaţii elaborate: toate fazele de proiectare
Foto: Dacian Groza, Radu Sălcudean, Șerban Bonciocat, planwerk
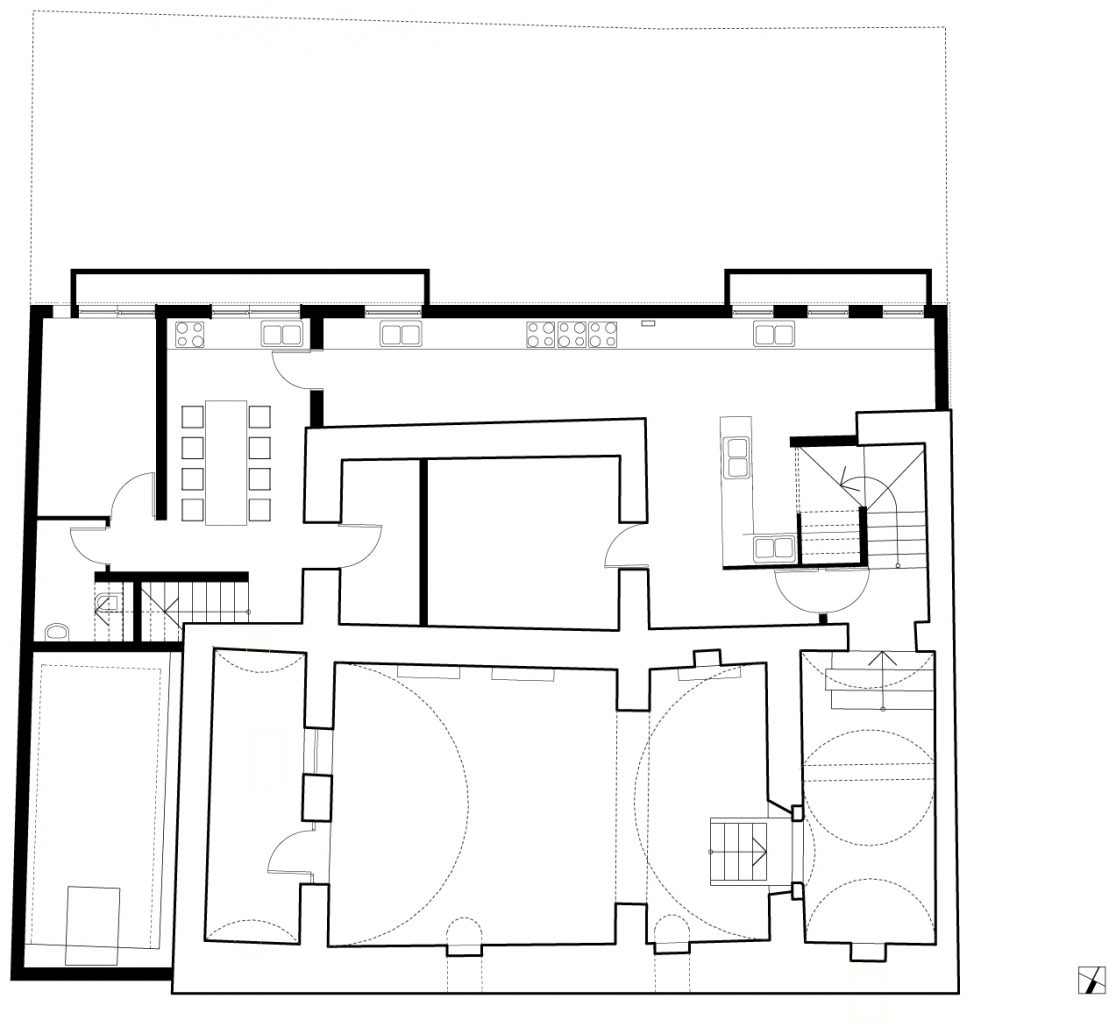
Casa se află în centrul istoric al Clujului, în apropierea Casei Matei Corvin, a Pieţei Muzeului şi a Universităţii Tehnice. Clădirea istorică existentă (sec. 15 – sec. 18) a fost extinsă şi supraetajată pentru a include două spaţii de birouri, cinci apartamente şi un spaţiu pentru un restaurant.
Funcţional, tipologic şi arhitectural, casa se doreşte o contribuţie echilibrată şi atentă, dar vizibil contemporană, la transformarea centrului istoric clujean.




















