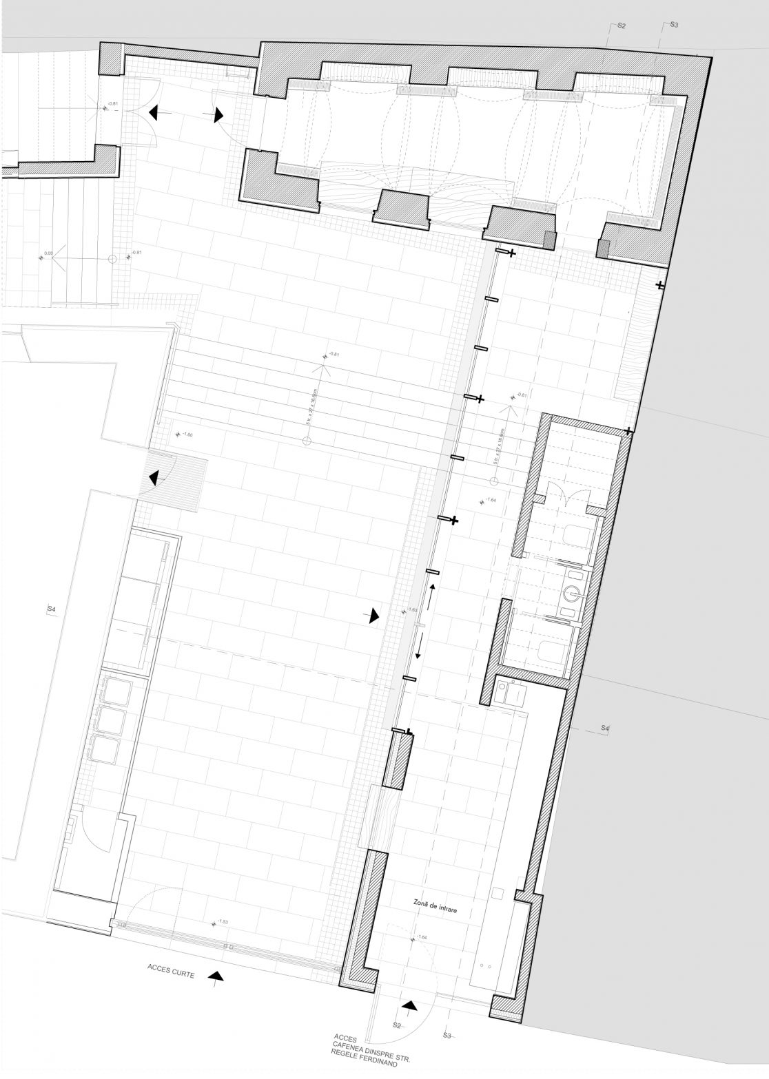
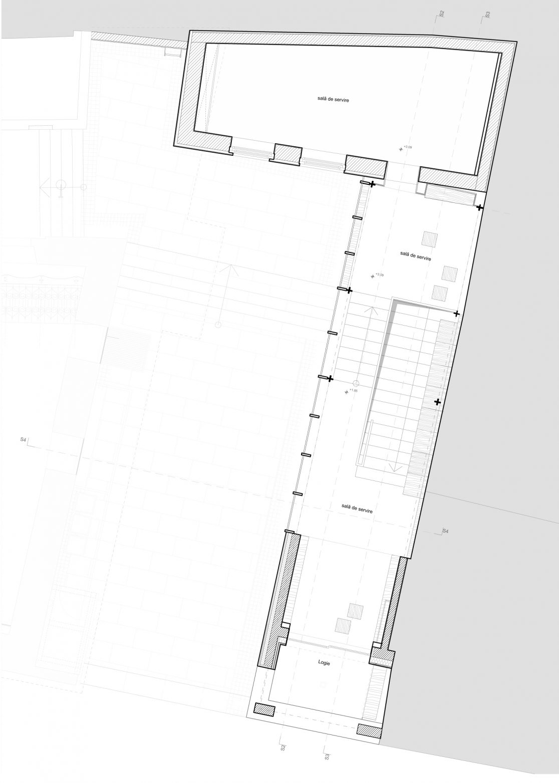
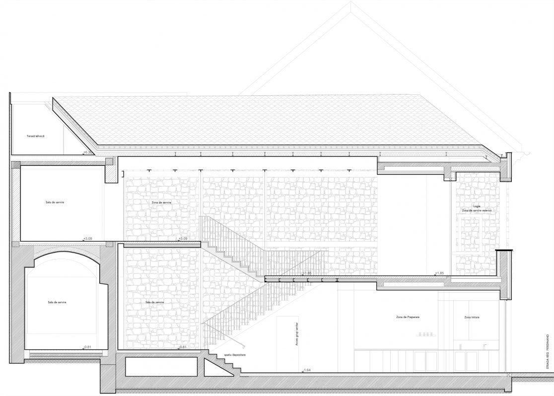
HOUSE HINTZ EXTENSION
Cluj. 2025
Client: Dr. Georg Hintz
External team: Iulia Miclea, Andreea Șuteu, Klara Veér – BIA / interior design, Progir Structural, Progir, Ioana Rus, Kovacs Zsolt, Emödi Tamas, Dorian Bărdașu
GFA: 138 sqm
Service phases: all design phases
Designed and built: 2019-2025
Photo credits: planwerk, Google Street View

















